Vive el campo cerca del pueblo: finca rústica con opción de construcción
TERRENO RÚSTICO CON GRAN SUPERFICIE Y EXCELENTES VISTAS Se ofrece…
52,000€
ALICANTE,Alicante,Carolinas bajas
Venta
90,000€



















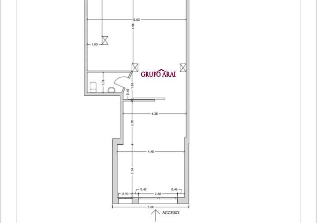
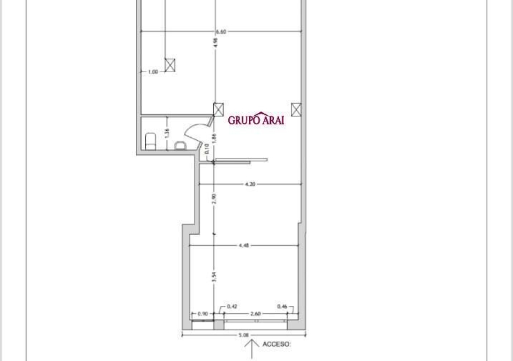
TU PRÓXIMO HOGAR EMPIEZA AQUÍ: UN LOCAL CON ALMA Y UN SINFÍN DE POSIBILIDADES.
Si buscas un espacio versátil con infinitas posibilidades, este local en el Bouleard del pla, cerca del museo del marc de Alicante es una oportunidad excepcional.
Con 100 m² construidos, su distribución diáfana lo convierte en la base perfecta para transformarlo en la vivienda de tus sueños o en un loft moderno y funcional.
Uno de sus grandes atractivos es el tragaluz, que permite la entrada de luz natural y aporta una sensación de calidez y amplitud, un detalle poco común que hará que cualquier futura vivienda se sienta más acogedora y luminosa.
En el fondo del local, encontramos una naya que añade un plus de personalidad y practicidad al espacio, perfecta para un altillo, zona de almacenaje o un rincón con encanto en la futura reforma.
Además, el local cuenta con buena ventilación en el trastero, lo que mejora las condiciones del inmueble y lo hace aún más atractivo para su transformación en vivienda.
Ubicado en una zona con todos los servicios y buenas conexiones, este local representa una gran oportunidad tanto para quienes buscan invertir como para quienes quieren diseñar su propio hogar con carácter y personalidad.
No dejes pasar esta oportunidad. Contacta ahora y descubre cómo este espacio puede convertirse en el hogar que siempre has imaginado.
TERRENO RÚSTICO CON GRAN SUPERFICIE Y EXCELENTES VISTAS Se ofrece…
52,000€
Descubre esta espectacular villa en construcción situada en la cotizada…
595,000€
Owning a home is a keystone of wealth… both financial affluence and emotional security.
Suze Orman